Detalii Proiect

An

2022

Categorie

Arhitectura

Locație

Iași, România

Arhitect

Ana-Ioana Călinescu & Lucian Cocea-Lionescu

Ai un proiect similar în minte?

Contactează-ne

Despre proiect

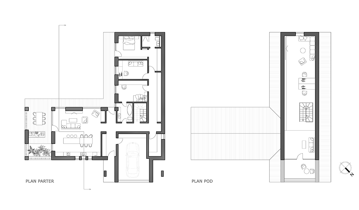
O casă ce stă întinsă la soare, conturată din linii simple și gesturi clare, se deschide către grădină cu „ochii” largi. L-am numit un acasă la firul ierbii, loc al viețuirii într-o conexiune permanentă cu pământul și cerul.

Also available in🇬🇧 English

Galerie foto