Detalii Proiect

An

2023

Categorie

Arhitectura

Locație

Iași, România

Arhitect

Lucian Cocea-Lionescu

Ai un proiect similar în minte?

Contactează-ne

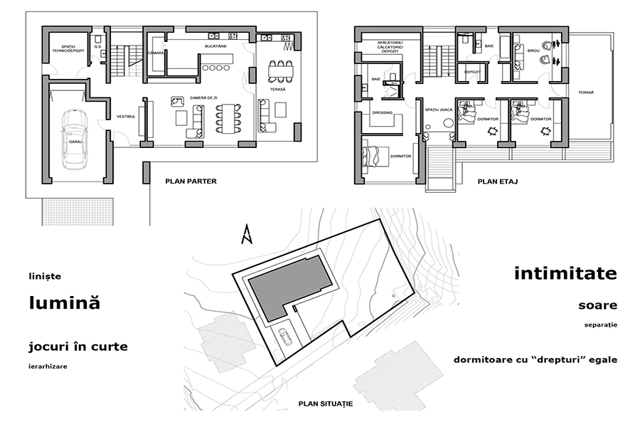
Despre proiect

Când acasă înseamnă lumină, te gândești la ferestre mari.

Când acasă înseamnă să poți vedea mereu curtea, te gândești la ferestre mari.

Când acasă înseamnă să pătrundă curtea în casă, te gândești la ferestre mari.

La asta ne-am gândit și noi când am imaginat casa cu ochii în soare, o casă pentru oameni luminoși, cu drag de natură.

Also available in🇬🇧 English

Galerie foto