Detalii Proiect

An

2016

Categorie

Arhitectura

Locație

Botoșani, România

Arhitect

Lucian Cocea-Lionescu, Bogdan Curelariu, Bogdan Curteanu, Anca Jipa & Liviu Talabă

Ai un proiect similar în minte?

Contactează-ne

Despre proiect

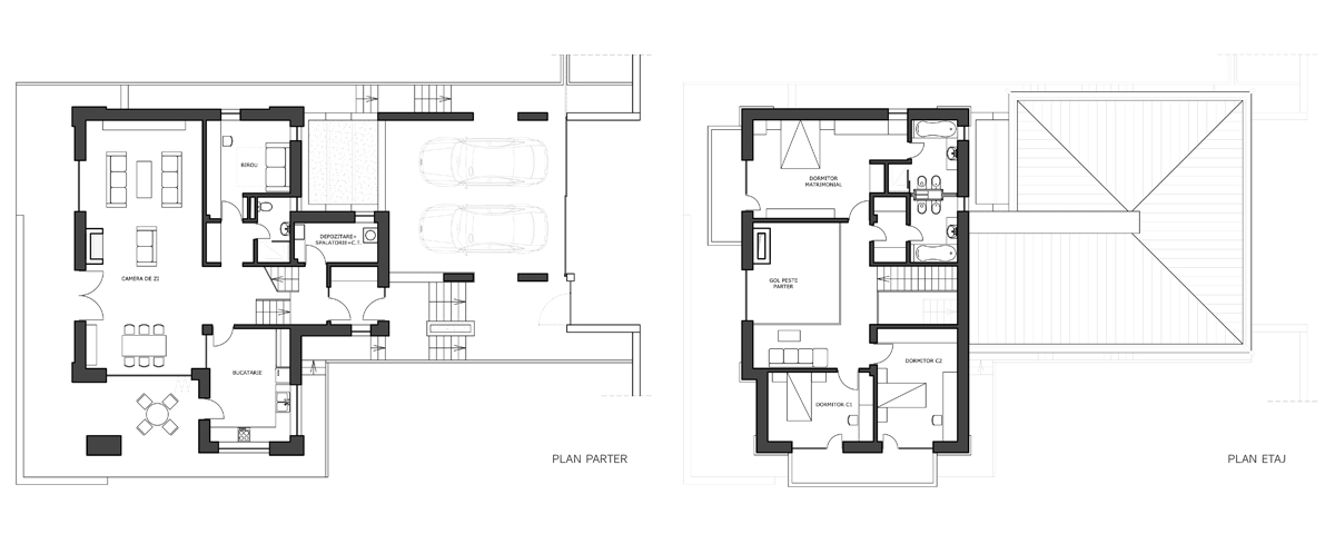
Propunerea pentru această locuință a fost conturată în contextul unui peisaj natural și atent așezată pe un teren cu o pantă accentuată, ce se deschide către un alt deal împădurit.

Tocmai caracteristicile zonei au dus la alegerea acestei configurații, de terasare a funcțiunilor, și la ampla deschidere către priveliște.

Parcurgerea spațiului se face treptat de-a lungul axului compozițional, începând cu zona de tranziție, exteriorară și acoperită, ce te pregătește pentru trecerea în spațiul interior, unde întreaga zona de zi este articulată cu cea de noapte de la etaj printr-o deschidere pe două niveluri.

Această conectare, asociată cu șemineul și cu vitrajul pe toată înălțimea, este punctul de greutate, centrul locuinței, care însă rămâne într-un permanent dialog cu mediul natural exterior.

Galerie foto