Detalii Proiect

An

2021

Categorie

Arhitectura

Locație

Iași, România

Arhitect

Ciprian Buzdugan, Lucian Cocea-Lionescu, Bogdan Curelariu & Anca Jipa

Ai un proiect similar în minte?

Contactează-ne

Despre proiect

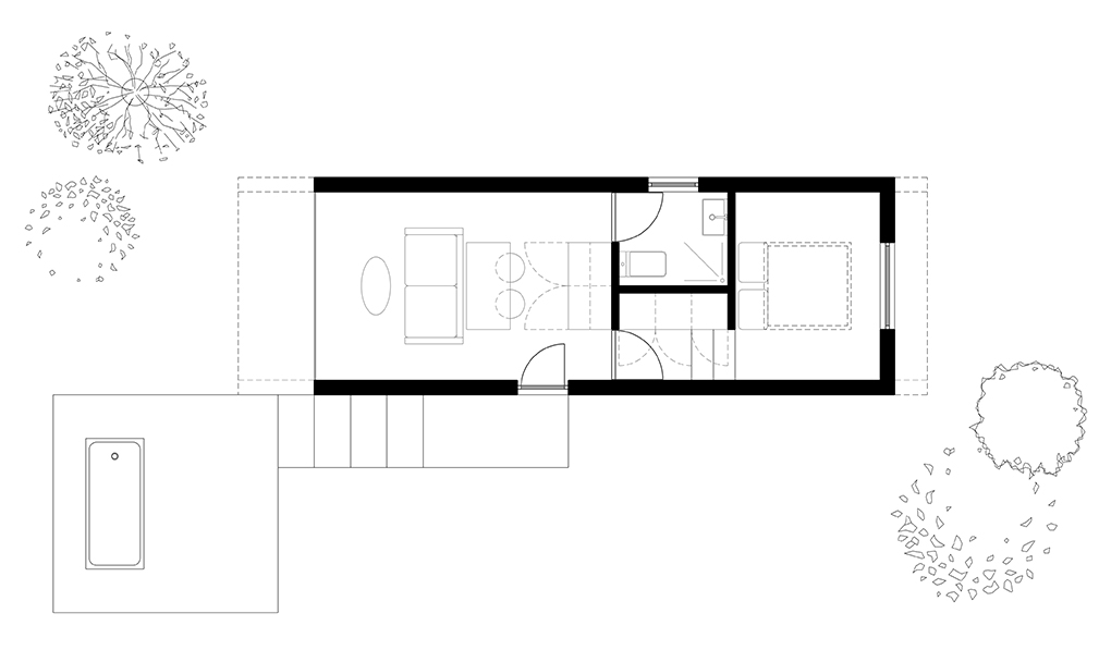
Locuirea, fie permanentă sau ocazională, are menirea să aducă o îmbunătățire a calității vieții, iar când spațiul construit depășește nivelul de adăpost, atunci putem vorbi de emoții și trăiri.

Asta am încercat și noi să creăm în acest spațiu compact, dar totuși ofertant. O cochilie care prin perforații conectează interiorul de exterior și viceversa, care oferă un cadru propice pentru deconectare, relaxare, reculegere sau meditație. Ne-am imaginat cum ar fi să stai cufundat într-o canapea confortabilă și să privești ore în șir natura printr-un spațiu vitrat generos, să te scufunzi într-o cadă exterioară sau să te arunci pe salteaua mare cât toată zona de dormit și să privești cerul înstelat prin fereastra zenitală. Cu siguranță vom afla odată cu realizarea prototipului. Poate și voi, de ce nu?